The Sopris DUPLEX

3 Bedroom, 3 Bath (per unit)
2039 SF (per unit)

The Sopris duplex is named for the dramatic two-peaked mountain in the central Rocky mountains of Colorado.  It was originally designed to meet the passive house standard - the most rigorous standard for energy efficiency, comfort, durability, and health.

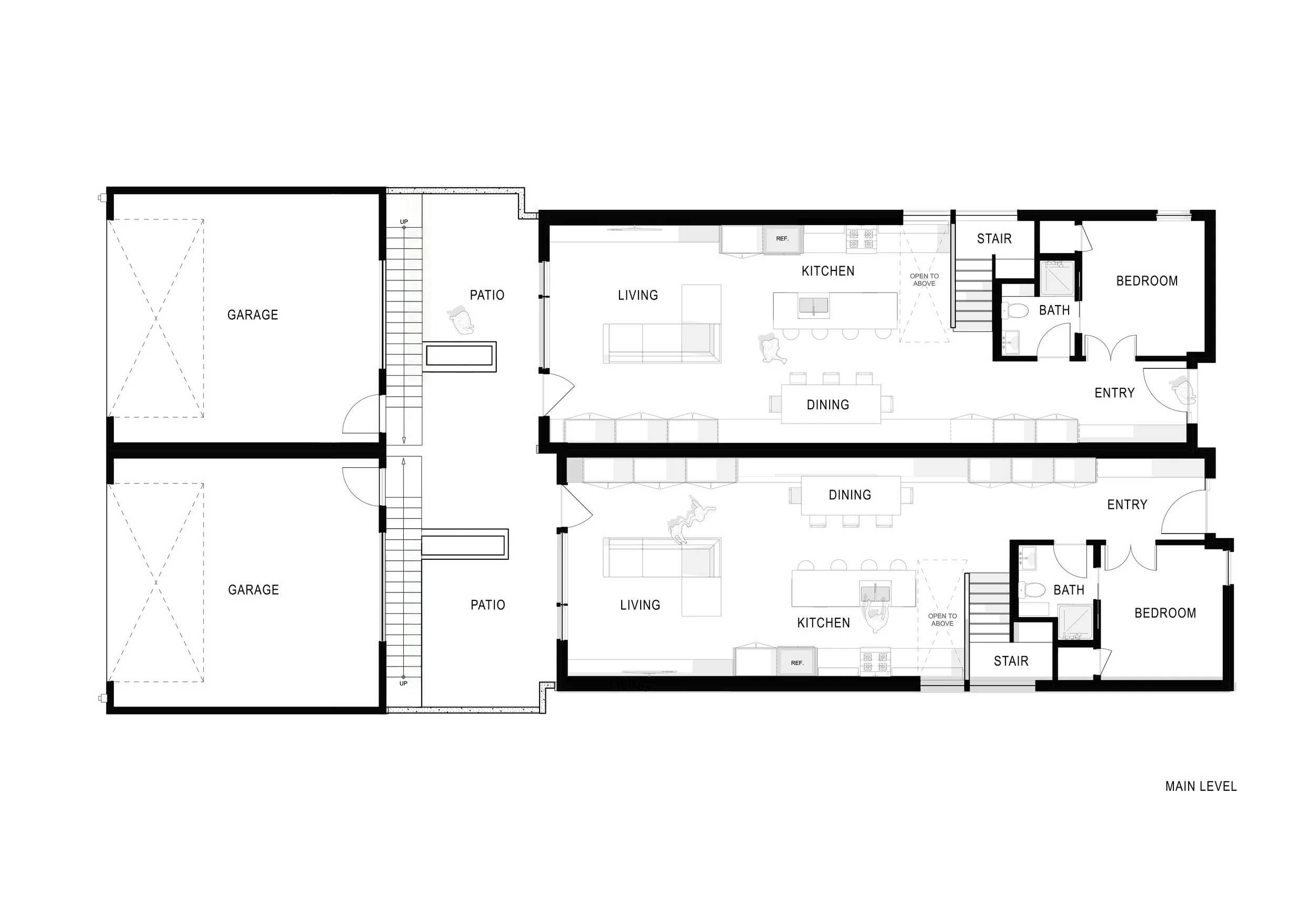
The two identical floor plans (mirrored along the shared property line), share a single thermal envelope, dramatically reducing energy losses and resulting heating demands.  A tall bank of triple-pane windows and high-performance skylights located at the stair atrium brings dramatic daylight into the heart of the home and optimizes passive solar gain.

Each unit has 3 bedrooms, 3 bathrooms and a generous Kitchen/ Dining/ Living space with direct connection to a private rear patio. The first floor includes a bedroom, which can also be used as an office, and is secluded to afford the occupant a quiet place to sleep or work.

Both floors have built-in storage and closets to maximize space efficiency. Each unit has a private garage with a rooftop patio for even more space to gather, entertain, or to simply relax.

GeT started