‘Azul’ Casita in Santa Fe

Intergenerational Living, Delivered in a Day

In Santa Fe, a professional couple working in graphic design set out to expand their home in a way that felt intentional, connected, and beautifully resolved. The goal was not simply more square footage, but the ability to host family across generations with privacy and dignity.

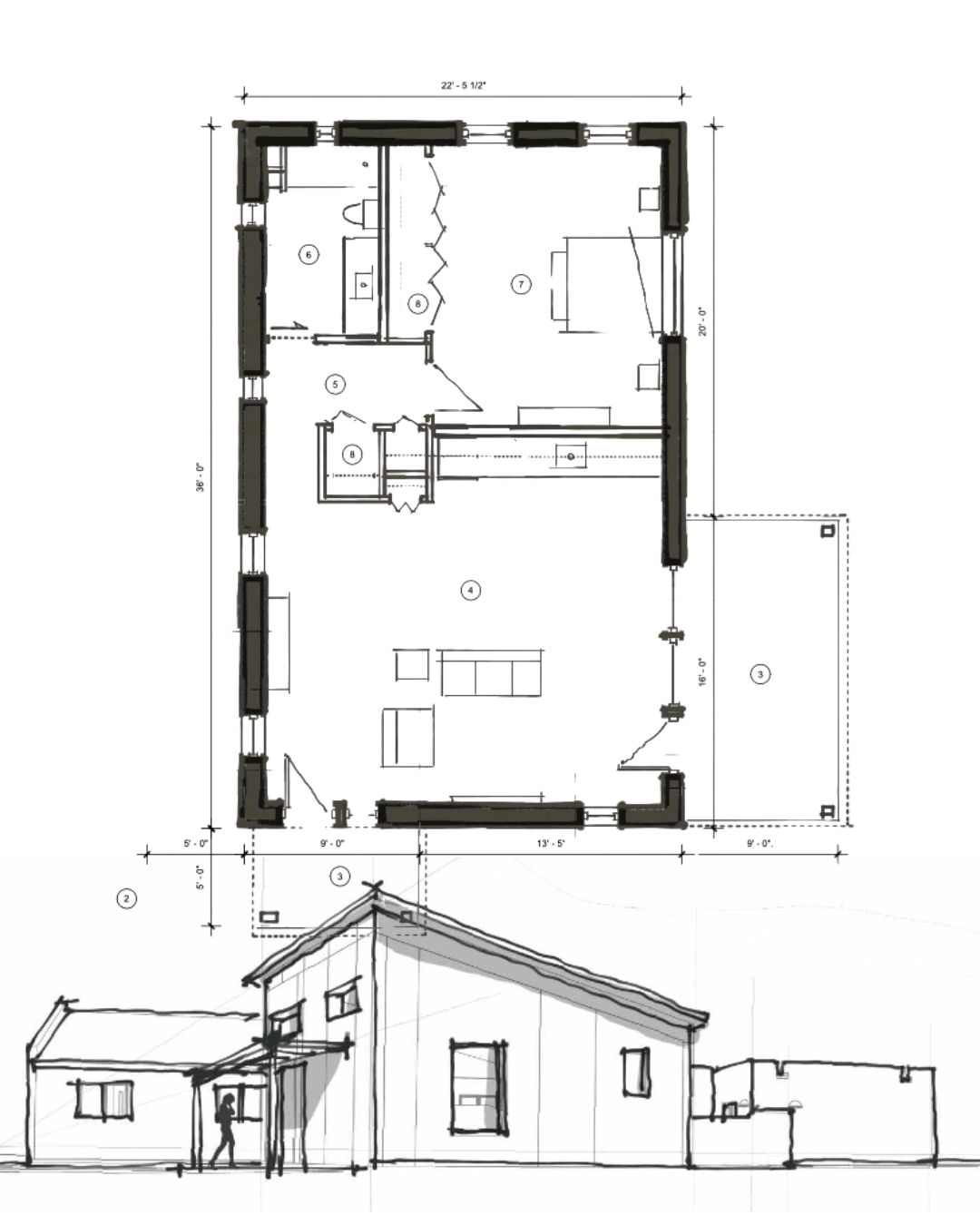
The result is a 671 square foot casita with one bedroom, one bath, and a generous great room. Designated yet connected to the main home, it creates space to gather and space to retreat.

What makes this project remarkable is not only its design clarity, but its speed. Installed in partnership with Wildflower Construction, the full enclosure of floor, wall, and roof panels was assembled in less than five hours. From delivery to dried in shell, the structure came together in a single morning, demonstrating how familiar panelized systems can streamline sequencing without disrupting a builder’s workflow. A timelapse of the install captures just how seamlessly the system integrates with a skilled local crew.

Performance and comfort were central. The home features Sierra Pacific Windows, decentralized ductless ERVs from 475 High Performance Building Supply using Lunos wall mounted cassettes, a heat pump with minisplits, and a compact tankless water heater. The high performance enclosure supports excellent airtightness and a healthy, non toxic interior environment.

Inside, the clients’ design sensibility is evident in every detail, including natural plaster shower work by Samas Design.

The success of this small but powerful project did not end at completion. Its layout and intergenerational logic became the inspiration for the Azul plan in our B.HOMES Library, translating a custom casita into a replicable, performance-driven design that can serve other families looking for flexible, connected living.

Beyond the build itself, the homeowners have generously opened their doors for community tours, helping neighbors see firsthand what high performance panelized construction can look like in Santa Fe.

This project demonstrates that small can be powerful. Thoughtful design, healthy materials, and modern building science delivered with craftsmanship and speed.


Project Details:

Specs: 1 Bed • 1 Bath • Approx. 671 sqft
Location: Santa Fe, New Mexico, USA

Designer: B.PUBLIC Studio (the Azul plan)
Builder: Wildflower Construction

B.PUBLIC Panels: R35 Performance Wall; R59 Roof
Panel Installer: Wildflower Construction

Windows & Doors: Sierra Pacific Windows
Ventilation: Lunos ductless ERVs from 475.Supply
Mechanicals: heat pump and mini-splits, tankless on-demand water heater under cabinet

Site Features: Serves as a casita ADU, connected to main house via breezeway and covered pergola designed by B.PUBLIC Studio. Natural plaster by Samas Design.


Behind the Build:

Check back here to learn more about this project behind-the-scenes as it progresses:

🎥 Video:
Check out the timelapse video of the panel installing in less than 5 hours.
🗓️ Event: February 21, 2026 - Join us for a Site Tour of this project - RSVP on our Events page

From concept sketch to panel fabrication, some images from the design process:

Previous
Previous

High-Altitude Home in Leadville

Next
Next

Gurley Forum at Santa Fe Institute